Realty Media Support
Home
Features
Photos
Videos
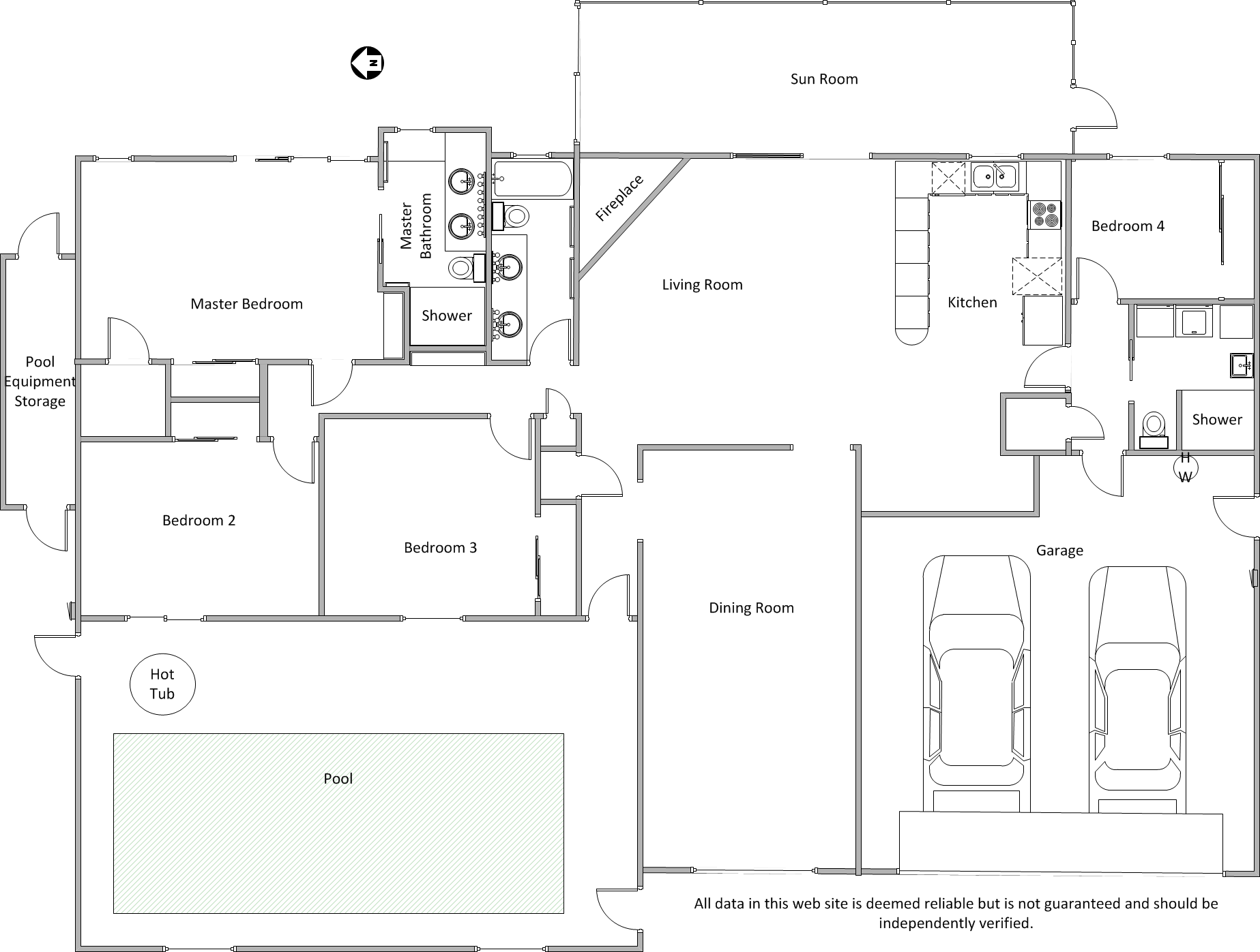
Floor Plan
Contact
A floor plan is worth more than 1000 words!